高井田本通倉庫・工場

物件番号:No.30072

賃料/坪単価

220,000円

( 坪単価:4,848円 )

所在地 大阪府東大阪市高井田本通
交通 高井田中央駅(おおさか東線)  徒歩 12分
保証金/解約引 - / -
敷金/礼金 1ヶ月 / 1ヶ月
DSCN1216
DSCN1216
DSCN1216
高速出入口 阪神高速13号東大阪線 高井田
構造 鉄骨造 2階建
竣工年月日 1973年 8月
入居可能日 相談
用途地域 工業地域
敷地面積
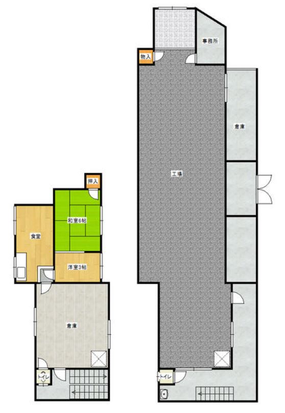
建物面積
1 階 100.00 ㎡ ( 30.25坪 )
2 階 50.00 ㎡ ( 15.13坪 )
合計 150.00㎡ ( 45.38坪 )
前面道路 6.00m

付帯設備

備考

    ・借家人賠償付火災保険加入要

    ・家賃保証会社加入要

    ・現状有姿

tankyusouko.jp

〒537-0002 大阪市東成区深江南2丁目3-26 2F

TEL 06(6975)7780 FAX 06(6975)7781

大阪府知事(3)第58386号 MAIL info@tochitatebuilding.co.jp

スライダー 矢印 矢印 下向き バツ印 アイコン ハート アイコン 電話 アイコン きらきら アイコン ハイライト 吹き出し アイコン 設備 トイレ付き アイコン 設備 費用安 アイコン 設備 住居付倉庫 アイコン 設備 面白い形 アイコン 設備 店舗使用OK アイコン 設備 レトロ倉庫 アイコン 設備 保証会社無 アイコン 設備 天井高 アイコン 設備 工場使用OK アイコン 設備 レア物件 アイコン 設備 大型トラック アイコン 設備 駐車スぺース アイコン 設備 駅チカ アイコン 設備 コンビニ近い アイコン 設備 分割貸OK アイコン 設備 事務所付 アイコン 設備 改造 OK アイコン 設備 短期使用OK アイコン 設備 クレーンリフト アイコン 設備 高速 IC アイコン フォーム STEP1 アイコン フォーム STEP2 アイコン フォーム STEP3 アイコン 削除