大阪狭山市大野西倉庫・事務所

物件番号:No.31178

賃料/坪単価

330,000円

( 坪単価:2,177円 )

所在地 大阪府大阪狭山市大野西
交通 千代田駅(南海高野線)  徒歩 29分
保証金/解約引 - / -
敷金/礼金 2ヶ月 / 1ヶ月
DSCN1216
DSCN1216
DSCN1216
高速出入口 阪和自動車道 堺
構造 鉄骨造 亜鉛メッキ鋼板葺
竣工年月日 1983年
入居可能日 2026年2月上旬
用途地域 調整区域
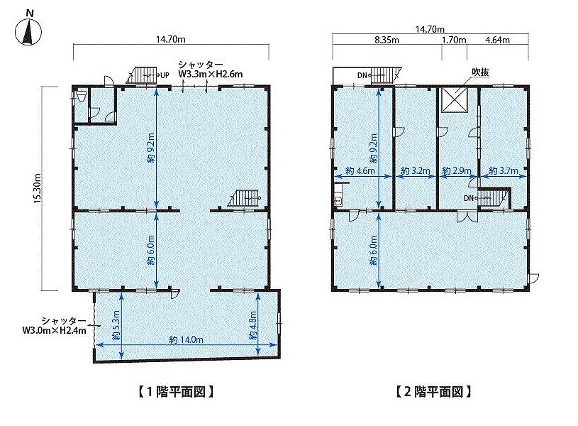
敷地面積 410.00㎡ ( 124.03坪 )
建物面積
1 階 276.15 ㎡ ( 83.54坪 )
2 階 224.91 ㎡ ( 68.04坪 )
合計 501.06㎡ ( 151.58坪 )
前面道路 6.00m

付帯設備

備考

    ・賃貸保証会社加入要

    ・貸主様 インボイス未登録

tankyusouko.jp

〒537-0002 大阪市東成区深江南2丁目3-26 2F

TEL 06(6975)7780 FAX 06(6975)7781

大阪府知事(3)第58386号 MAIL info@tochitatebuilding.co.jp

スライダー 矢印 矢印 下向き バツ印 アイコン ハート アイコン 電話 アイコン きらきら アイコン ハイライト 吹き出し アイコン 設備 トイレ付き アイコン 設備 費用安 アイコン 設備 住居付倉庫 アイコン 設備 面白い形 アイコン 設備 店舗使用OK アイコン 設備 レトロ倉庫 アイコン 設備 保証会社無 アイコン 設備 天井高 アイコン 設備 工場使用OK アイコン 設備 レア物件 アイコン 設備 大型トラック アイコン 設備 駐車スぺース アイコン 設備 駅チカ アイコン 設備 コンビニ近い アイコン 設備 分割貸OK アイコン 設備 事務所付 アイコン 設備 改造 OK アイコン 設備 短期使用OK アイコン 設備 クレーンリフト アイコン 設備 高速 IC アイコン フォーム STEP1 アイコン フォーム STEP2 アイコン フォーム STEP3 アイコン 削除